available

Hall Gate, Doncaster, DN1

£349,995

Description

  • Type: Flat
  • Bedrooms: 3
  • Bathrooms: 1
  • Reception Rooms: 1

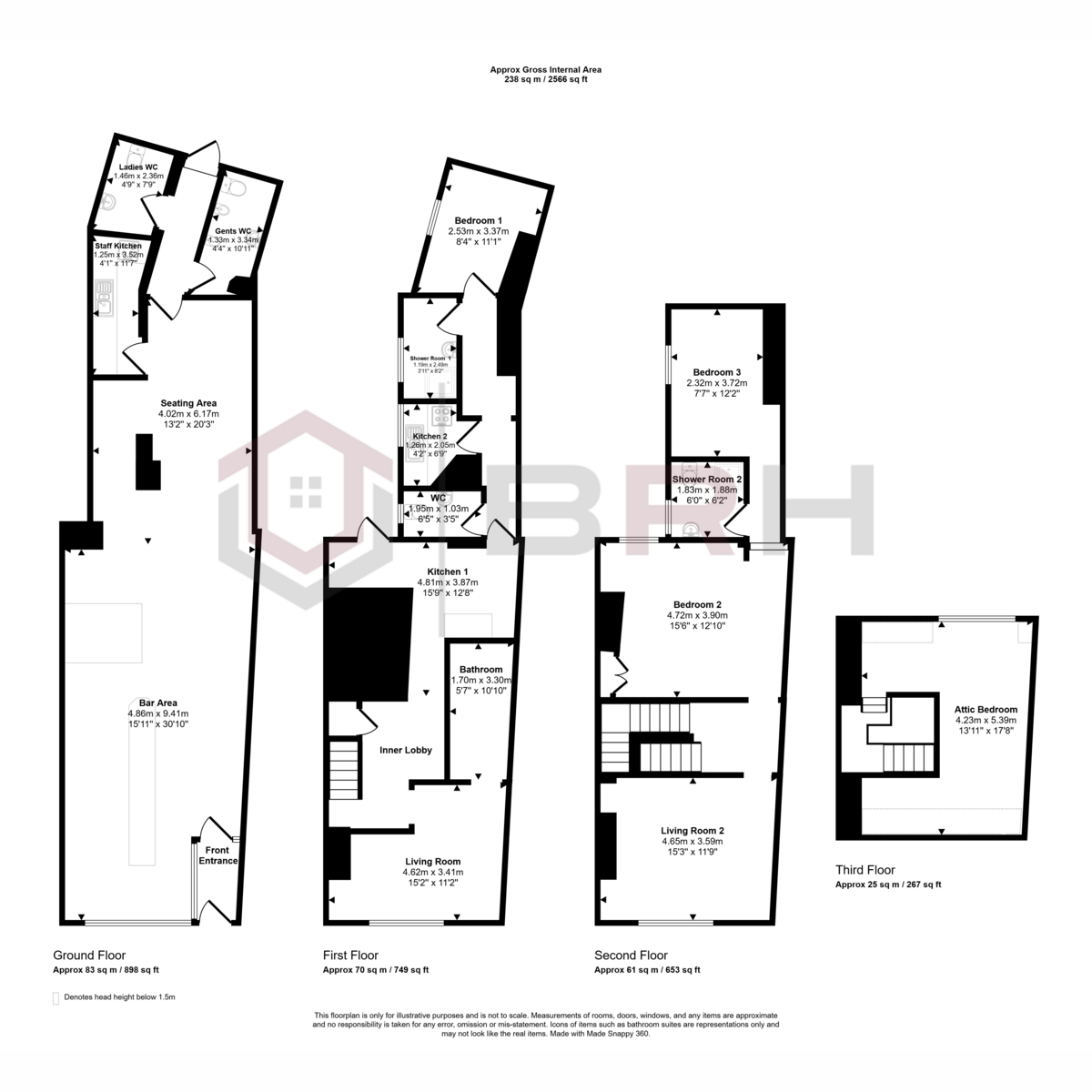
Situated in the heart of Doncaster, this commercial property on Hall Gate presents an excellent opportunity for investors. The ground floor is fully let with a newly agreed commercial lease of £2800pcm, ensuring a steady income stream. Above, the residential unit spans three floors and offers the potential to be split into two or three separate flats or retained as an HMO, increasing its appeal and versatility.

The property boasts a substantial build area of 238m2, offering ample space for various uses. Its prime location in Doncaster city centre ensures easy access to local amenities and transport links, making it an attractive choice for both businesses and residents. The surrounding area is vibrant, with numerous shops, eateries, and cultural attractions nearby.

This freehold property comes with the advantage of no onward chain, facilitating a smooth purchase process. Don't miss out on this opportunity to secure a high-yielding asset in a sought-after location.

Check out our 3D Virtual Tour

*A buyer's premium of 1% + VAT, (subject to a minimum of £2995 + VAT) of the agreed sale fee applies to this property. 25% of the total fee (a minimum of £995 + VAT) must be paid to secure the property and the remainder is payable upon exchange of contracts. Terms and conditions apply, please see the 'Buyer's Premium' page on our website for more information.

Location

Floorplans

EPC Graph